München, Deutschland

Spacious garden maisonette with private outdoor area

Register now
Spacious garden maisonette with private outdoor area

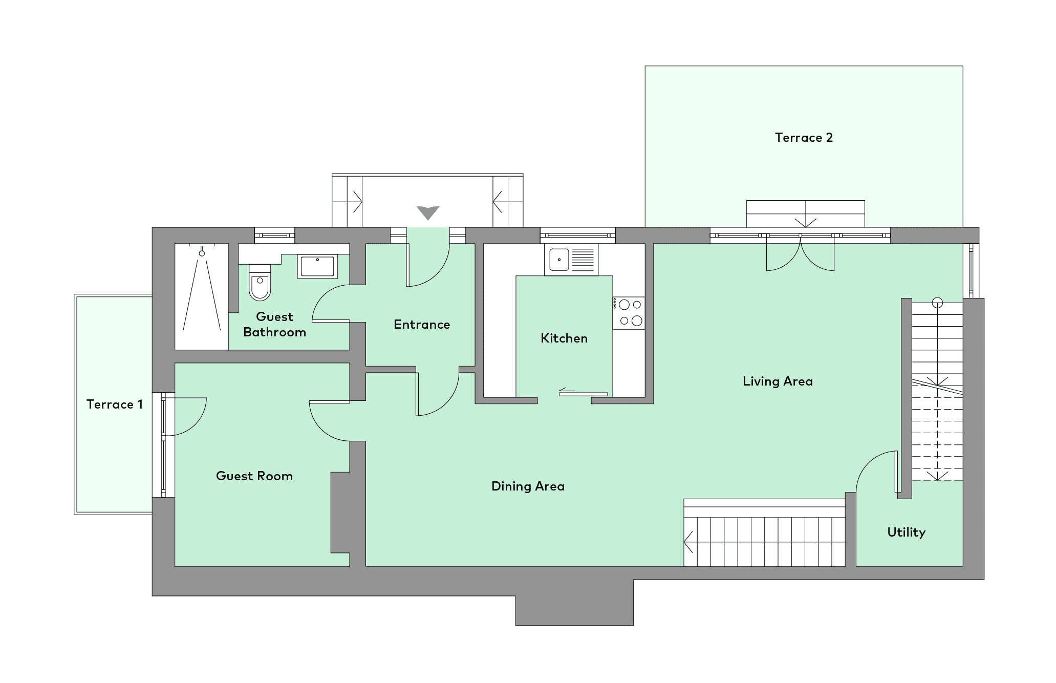
This spacious maisonette apartment extends over three levels (basement, ground floor, first floor) and offers a pleasant balance between an open living atmosphere and personal retreat. Families or couples in particular will appreciate the well thought-out floor plan and the friendly ambience. Large windows provide plenty of natural daylight and create bright, homely rooms. A highlight is the covered terrace, which leads into the well-tended garden and is ideal for spending time together outdoors.

Key Data

The apartment has practical and solid fittings that make everyday life comfortable. There is a modern video intercom system in the entrance area. The spacious, U-shaped fitted kitchen is well equipped and offers plenty of space for cooking and eating together. A beautifully designed natural stone staircase with indirect lighting leads to the upper floor, where there is a spacious bedroom with access to a second terrace and a bathroom with shower and bathtub. In addition, floor-to-ceiling windows, electric shutters, underfloor heating and insect nets ensure pleasant living conditions. The space is practically complemented by a garden shed for storage.

Property TypeApartment
Room4
construction year1971
Bathroom3
Living areaapprox. 174 m2
Parking Spaces1
commission3,57% incl. VAT
Highlights
two Terracces
private Garden
Hobby rooms
fitted kitchen
Floor Plans
1st Floor
Upper Floor
Basement